Berkel-Enschot – Type G1 tweekappers 19
- Prijs
- € 545.000,-
- Adres
- 5056 BH, Berkel-Enschot
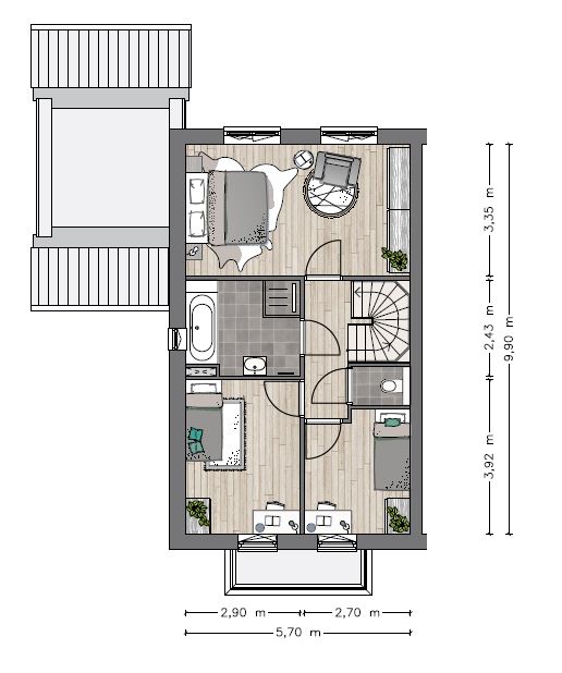
Omschrijving
Type G1 is een fraaie twee-onder-een kapwoning met garage op een ruim perceel en komt twaalf keer voor in het project. Deze ruim opgezette woningen, met een beukmaat van 6 meter, kennen een uiterst functionele indeling. Naast een ruime woonkamer met ruime keuken aan de achterzijde van de woning bieden ze onder meer 3 slaapkamers, badkamer en apart toilet op de eerste verdieping. De tweede verdieping is voorzien van een aparte technische ruimte met opstelplaats voor wasmachine en droger en is gemakkelijk in te delen tot meerdere ruimtes. De type G1 woningen zijn voorzien van een ruime garage met geïsoleerde spouwmuur, vloer en dak, sommige zelfs met een extra zolder op de garage. De type G1 woningen zijn voorzien van een erker aan de voorzijde van de woning.
In Bloemenhof in Berkel-Enschot realiseert Van de Ven Bouw en Ontwikkeling 39 woningen met een dorps karakter. Het project, onderdeel van Enschotse Tuinen, bestaat uit vijf hoofdtypes: 4 tussenwoningen, 6 hoekwoningen, 10 twee-onder-één-kapwoningen, 16 (semi) bungalows en 3 vrijstaande woningen. Wonen in een dorpse, groene omgeving én genieten van de dynamiek van de stad. Dát vind je in uitbreidingsgebied De Enschotse Tuinen. De Enschotse Tuinen is gelegen aan de westkant van Berkel-Enschot, omsloten door de Burgemeester Bechtweg, de Bosscheweg en de Enschotsebaan. Project Bloemenhof is onderdeel van de Enschotse tuinen.
Visser en Bouwman architecten
Anoul Bouwman

