Tilburg – Gotenpark 11
- Koopprijs
- € 400.000,- k.k.
- Aantal kamers
- 2
- Aantal slaapkamers
- 1
- Woonoppervlakte
- 115 m2
- Bouwjaar
- 2001
Omschrijving
Modern hoekappartement gelegen op een unieke locatie in Zorgvlied ter hoogte van het vroegere openlucht zwembad. Het appartement is bijzonder ruim en beschikt over een zeer riante slaapkamer. De mogelijkheid bestaat om één of zelfs twee extra slaapkamer te creëren. Zie hiervoor de optie plattegrond welke we hebben toegevoegd. Ook heeft het appartement een werkelijk unieke balkon ligging met een schitterend uitzicht over een privé park met onder andere een waterpartij en diverse volwassen bomen. Het appartement is gelegen op de eerste verdieping waardoor er op een plezierige manier contact is met de buitenwereld en toch alle privacy wordt geboden. Ook heeft het appartement een eigen parkeerplaats en berging in de kelder van het complex. Het appartement is gesitueerd in een schitterende bosrijke omgeving nabij de “Oude Warande” en het “Wandelbos”. Hier hoort u dus altijd de vogels fluiten en ziet u soms zelfs eekhoorns lopen. Ondanks de rustige omgeving liggen belangrijke uitvalswegen en voorzieningen op een steenworp afstand. Scholen, de universiteit van Tilburg, het treinstation Tilburg-Universiteit, winkelcentra Burgemeester van de Mortelplein & Professor de Moorplein en diverse sportvoorzieningen liggen op loopafstand. Het centrum van Tilburg bereikt u op de fiets in 10 minuten. Daarnaast zijn ook de uitvalswegen richting Eindhoven, Breda en ’s Hertogenbosch vanaf de woning uitstekend te bereiken.
Bouwjaar: 2001
Woonoppervlakte: circa 115 m²
Balkon: circa 8 m²
Inhoud: circa 390 m3
Bijdrage VVE: ca. € 191,06 per maand
Entree:
Het appartement is toegankelijk middels de inpandige galerij. In de centrale hal bij binnenkomst bevinden zich de videofoon/intercomsysteem en de brievenbussen. In de hal bevindt zich tevens de trapopgang, de lift en de gezamenlijke en afgesloten containerruimte.
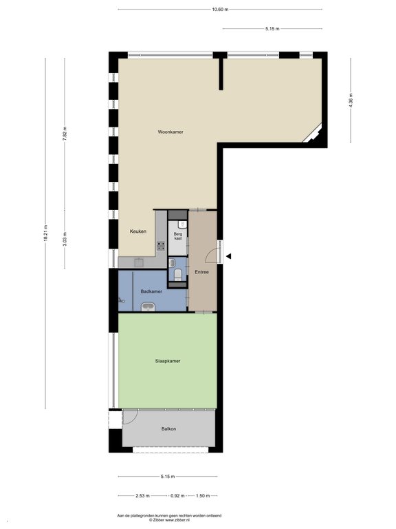
Indeling:
De hal/entree met tegelvloer geeft toegang tot alle vertrekken van de woning.
Woonkamer & keuken:
De riante woonkamer is netjes afgewerkt met een tegelvloer en stukwerk op de wanden. De indeling in twee deels van elkaar gescheiden ruimtes geeft de woonkamer een speels effect. Door de vele ramen komt er veel daglicht de ruimte binnen. De keuken staat in open verbinding met de woonkamer en heeft een keukenblok in hoekopstelling. De luxe keuken (2018) is voorzien van veel gemakken. Zo vindt u hier een inductie kookplaat, afzuigkap, combi-oven, koelkast, vriezer, RVS spoelbak en een vaatwasser.
Slaapkamer & badkamer:
De zeer riante slaapkamer (ca. 24 m²) is netjes afgewerkt met een tegelvloer en stukwerk op de wanden. Via een deur heeft u vanuit de slaapkamer toegang tot het balkon. De mogelijkheid bestaat om één of zelfs twee extra slaapkamer te creëren. Zie hiervoor de optie plattegrond welke we hebben toegevoegd bij deze aanmelding. De badkamer is volledig betegeld en daarnaast voorzien van een wastafel in meubel en een riante douche.
Toiletruimte & technische ruimte:
De toiletruimte is voorzien van betegeling en heeft daarnaast een hangend toilet en een fonteintje. In de technische ruimte vindt u de opstelling van de CV-ketel (2018) en de aansluitingen voor de wasapparatuur.
Balkon:
Het balkon is gelegen aan de slaapkamer en is ca. 8 m² groot. Het balkon biedt een fantastisch uitzicht over een privé park met onder andere een waterpartij en diverse volwassen bomen. Daarnaast is het balkon volledig overdekt en voorzien van een zonnescherm.
Parkeren:
Het appartement beschikt over een eigen parkeerplaats in de afgesloten parkeerkelder. Hier vindt u ook de zeer ruime berging (ca. 12 m²) behorende bij het appartement.
Algemeen:
– kosten VVE: ca. € 191,06 per maand;
– modern appartement gelegen in de gewilde wijk Zorgvlied;
– balkon met een fantastisch uitzicht over een privé park
– verschillende voorzieningen zoals winkels en scholen op loopafstand;
– eigen parkeerplaats en ruime berging in de afgesloten parkeerkelder;
– gelegen nabij voorzieningen, winkels, sportvelden en stadscentrum;
– gelegen aan de rand van bosgebied de “Oude Warande” en het “Wandelbos”;
– goede ontsluiting met de snelwegen naar Eindhoven, Breda en ‘s-Hertogenbosch.
Het complex:
Het Gotenpark is een geheel van 3-appartementcomplexen en woningen rondom een centraal park. Voor de inrichting van het park hebben de ontwerpers in 2004 de Omgevingsarchitectuurprijs gewonnen. Het geheel is omgeven is door overdadig groen, gelegen tussen het stadshart van Tilburg en de uitgestrekte bossen rond de Bredaseweg en toch ook nabij de belangrijkste uitvalswegen van Tilburg. De nabijheid van scholen en alle winkels voor de dagelijkse boodschappen maken het verder tot een unieke locatie in Tilburg.

