Tilburg – Enschotsestraat 295
- Koopprijs
- € 310.000,- k.k.
- Aantal kamers
- 3
- Aantal slaapkamers
- 2
- Woonoppervlakte
- 100 m2
- Bouwjaar
- 2005
Omschrijving
Appartement gelegen in hartje centrum op de derde verdieping van appartementencomplex “Ensburg”. Het appartement beschikt over twee ruime slaapkamers. Ook beschikt het appartement over een eigen parkeerplaats en een berging in de kelder van het complex. Het appartement is energiezuinig en voorzien van energielabel A. Het complex is gelegen aan de Enschotsestraat (hoek NS-plein) op loopafstand van het stadscentrum, centraal station Tilburg & de volledig herontwikkelde “Spoorzone”. U woont dus met alle belangrijke voorzieningen direct voor de deur. Het bruisende Tilburgse uitgaansleven met gezellige terrassen, uitstekende restaurants en sfeervolle cafés is zeer nabij. Alles is binnen handbereik vanuit dit appartement in het hart van Tilburg. Bijzonder is dat met een overdaad aan centrum voorzieningen op loopafstand, het appartement als zeer rustig wordt ervaren. Ook bereikt u via de nabij gelegen Ringbanen eenvoudig de snelwegen richting zowel Breda, Eindhoven als ‘s-Hertogenbosch.
Steeds meer mensen weten hun weg te vinden naar “De Spoorzone”. Struinend over een overdekte markt in de Wagenmakerij, smullend bij de Houtloods, de geweldige LocHal met bibliotheek of een avond swingen bij Theater de Boemel. Door de historie en sfeer zijn de gebouwen erg geschikt voor evenementen, culturele activiteiten en zakelijke bijeenkomsten. Deze worden dan ook met grote regelmaat georganiseerd. Een kunstexpositie in de Koepelhal, een avond lachen met Comedyzone in Club Smederij, maar ook de vele verrassende optredens en feestjes in de Hall of Fame of Club Smederij. Voor ieder wat wils.
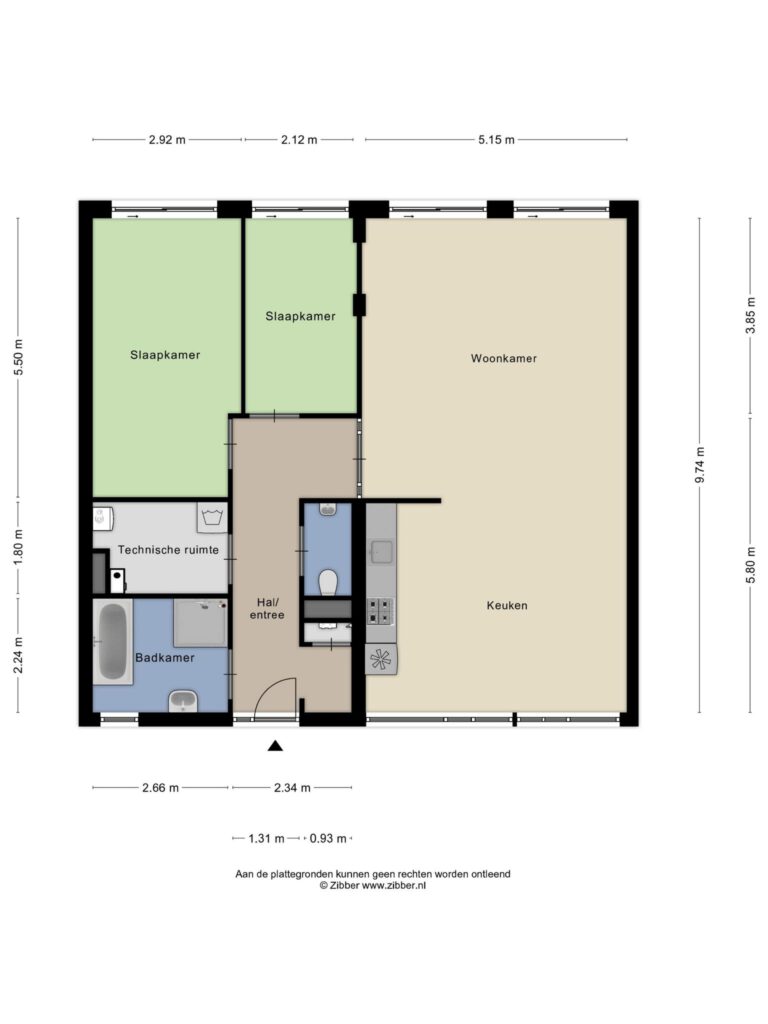
Woonoppervlakte: circa 100 m²
Bouwjaar: 2005
VVE kosten: circa € 184,19 per maand
Energielabel: A (geldig tot 15-10-2028)
Gezamenlijke entree:
De binnenplaats van het complex is toegankelijk via een automatisch hek aan zowel de Enschotsestraat als aan de Koestraat. Bij de gezamenlijke entree vindt u het bellenplateau en de brievenbussen. Via de binnenplaats bereikt u vervolgens de lift en het trappenhuis. Tevens is er vanuit hier toegang tot de kelder met de bergingen, parkeerplaatsen en de gemeenschappelijke fietsenberging. Het appartement heeft een eigen parkeerplaats en berging in deze kelder. De parkeerkelder is met de auto bereikbaar vanaf de Enschotsestraat.
De indeling van het appartement:
De hal/entree geeft toegang tot alle vertrekken van het appartement.
Woonkamer & Keuken:
De ruime woonkamer is voorzien van twee schuifpuien (Franse balkons) welke een mooi zicht bieden op de binnenstad van Tilburg. De keuken staat in open verbinding met de woonkamer en heeft een keukenblok in rechte opstelling. De keuken is voorzien van veel gemakken. Zo vindt u hier een gaskookplaat, afzuigkap, RVS spoelbank, koelkast en een combi-oven.
Slaapkamers:
Het appartement beschikt over twee slaapkamers welke beide toegankelijk zijn vanuit de hal. Beide slaapkamers zijn voorzien van een schuifpui (Franse balkons).
Badkamer, toiletruimte en berging:
De badkamer is betegeld en voorzien van een ligbad, wastafel en douche. Ook de toiletruimte is betegeld en daarnaast voorzien van een staand closet en een fonteintje. In de berging vindt u naast de opstelling van de CV-ketel (Nefit, 2005) ook de aansluitingen van de wasapparatuur.
Algemeen:
– zeer centrale ligging in hartje centrum;
– appartement voorzien van twee slaapkamers;
– gelegen op het de derde verdieping van het complex;
– eigen parkeerplaats en berging in de kelder van het complex;
– volledig geïsoleerd en voorzien van dubbele beglazing;
– maandelijkse kosten VVE: circa € 184,19 per maand;
– de woning wordt verkocht voor zelfbewoning, het gebruik als beleggingsobject is niet toegestaan;
– bij verkoop zal gebruik gemaakt worden van de “Feitelijk gebruik clausule”;
– het transport dient plaats te vinden bij de project notaris.
Tiwos:
Woningen van de Tilburgse Woonstichting (Tiwos) worden gepasseerd bij notaris de Daamen de Kort van Tuijl Notarissen. Het is in geen gevallen toegestaan om de woning bij een andere notaris te laten passeren.
Het doel van de verkoop van woningen in deze wijk is het klimaat verder te optimaliseren en ervoor zorg te dragen dat er een goede balans is tussen het aantal koop- en huurwoningen. Het is koper daarom niet toegestaan de onroerende zaak geheel of gedeeltelijk te verhuren of in bruikleen af te staan danwel daarop een recht van erfpacht, opstal, vruchtgebruik of rechten van gebruik en bewoning te vestigen. Dit zal door de notaris worden opgenomen als een kettingbeding in het eigendomsbewijs.
De Tilburgse Woonstichting (Tiwos) attendeert koper uitdrukkelijk op het feit, dat hij het verkochte nooit zelf feitelijk gebruikt heeft en dat hij derhalve koper niet heeft kunnen informeren over de eigenschappen c.q. gebreken aan het verkochte waarvan hij op de hoogte zou zijn geweest indien verkoper het verkochte zelf feitelijk zou hebben gebruikt. In dit kader zijn partijen uitdrukkelijk overeengekomen dat dergelijke eigenschappen c.q. gebreken voor rekening en risico van koper komen en dat bij de vaststelling van de koopsom hiermee rekening is gehouden.

